CASA FP
A lagoa da Pampulha em Belo Horizonte está cheia de significados arquitetônicos e construir às suas margens significa estar próximo da herança modernista. A casa considera essa história recente mas também visita as varandas rurais através de brisas de espírito urbano.
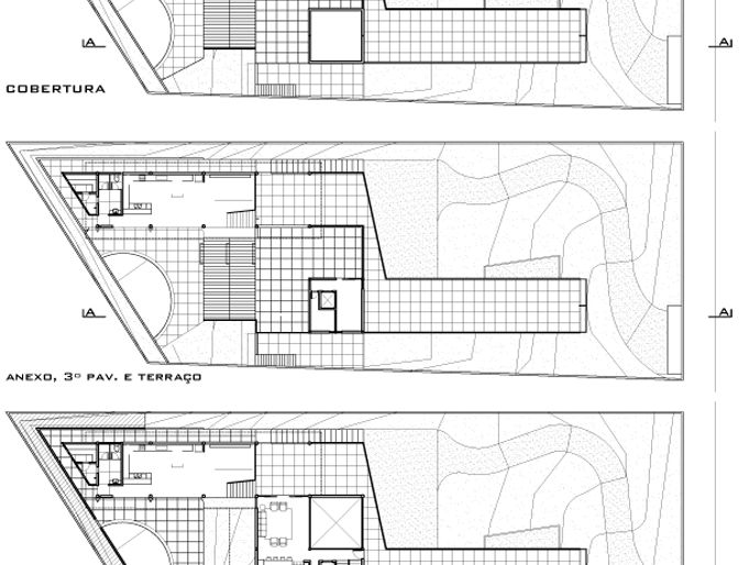
O terreno em aclive dialoga com a obra propondo encaixes e suspensões. A casa abriga seus dois tempos: A flutuação do volume frontal apresenta a ala intima dos quartos apontando o futuro na borda d’água; enquanto a coberta aberta dos fundos,onde arde em festa a lenha e o forno, está junto à terra e a memória intemporal.
Numa seqüencia de pisos e passos a construção encaixa o terreno fazendo do desnível um percurso da rua ao teto, da via ao céu mirante transformando a cobertura em terraços que contemplam os horizontes topográficos da cidade com sua cultura e lutas mutantes e da montanha com sua frágil eternidade.
Esta obra foi incluida no "Roteiro Interpretativo da Pampulha" e junto com outras da região foi destacada recebendo uma placa a sinalizando como 'Residência Contemporânea' e com o seguinte texto:
"Disposta no terreno com engenho e delicadeza, a residência reúne diversas estratégias e atributos especiais: o dinamismo do volume frontal, estirado e elevado do solo; a rusticidade abstrata da varanda, e o equilíbrio ortogonal do núcleo da residência. A implantação oferece ao espaço publico a percepção do jogo de volumes, embora resguarde a privacidade da vida doméstica. Reconhece-se na obra a pulsão renovada do momento pós-modernista mineiro, de dialogo com as linguagens contemporâneas, como as de matriz descontrutivista e com as raízes culturais locais reinventadas."
FICHA TÉCNICA:
Arquiteto e Coordenador: João Diniz
Colaboradores: José Baccarini, Pedro Guadalupe, João Pedro Torres, Isabel Diniz, Caio Guerra, Clarissa Bastos, Elena Vale, Monica Ogura e Priscila Garcia.
Fotografia: Leonardo Finotti
Localização: Jardim Atlântico, Pampulha, Belo Horizonte, Brasil
Área construída: 454 m² / Área do terreno: 1243 m²
Data do Projeto: 2007 / Conclusão da Obra: 2010
Prêmio Menção honrosa para obras edificadas na 12a Premiação IAB-MG 2010
Construção: Construtora Geraes / José Maurício Menezes
Cálculo estrutural: Marcello Cláudio e Sigefredo Fiuza
Projetos de instalações: Senog Ltda
Projeto luminotécnico: Abajur de Arte / Adraiana Vasconcelos
Paisagismo: Mercado Verde / Firmino Fiuza
Playground: Suzana Cadaval Arquitetura
Painel em azulejos da piscina: Fernando Pacheco
Obras de arte: Jorge dos Anjos, Jayme Reis, Monica Sartori
Principais Fornecedores:
vidros, esquadrias e guarda corpos: Aludesign / elevador: Montele / louças e metais: Deca / bancadas granito e pisos: Marmore / tintas: e pintura: Suvinil e Facecolor / cerâmicas: Trufaldi / montagem cozinha: Cook / cozinha externa: Ar Kente / armários embutidos: Cook / madeiras: Darci Jardim Canadá / alarme: Emive / telha cerâmica: Cerâmica Santa Catarina / impermeabilização: MG impermeabilizações / energia solar: JMS / pisos premoldados flutuantes: Concrefit / deck: Madepaus / equipamento sauna: Casa da Piscina



















